
Einreichplanung für Ihr Projekt
Gerne übernehmen wir die zügige und professionelle Erstellung Ihres Einreichplans samt sämtlicher erforderlicher Unterlagen für Bauvorhaben in Wien und Niederösterreich. Unsere umfassenden Kenntnisse der Bauordnungen beider Regionen sowie der aktuellen OIB-Richtlinien ermöglichen die erfolgreiche Umsetzung von Projekten jeglicher Komplexität, sei es der Bau einer einfachen Garage oder eines anspruchsvollen Gewerbebaus.

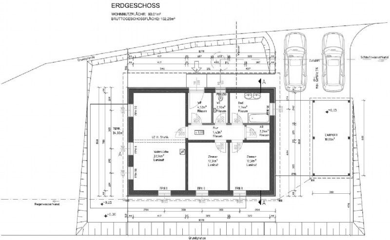
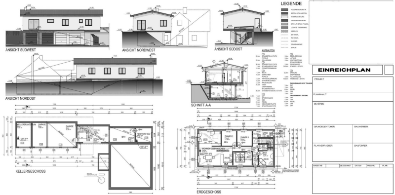
Planungsdokumente für die Einreichung eines Einfamilienhauses, umfassen:
- Flächenwidmung
- Ausdruck des Grundbuchauszugs und des Anrainerverzeichnisses
- Sichtung der vorhandenen Planunterlagen
- Abklärung bzw. Definition des umzusetzenden Objektes und Baustellenbesichtigung
- Einreichplan (Lageplan, Grundrisse, Ansichten, Schnitte, inkl. viermaliger Ausdruck des Einreichplans.)
- Baubeschreibung
- Bruttogeschoßflächenberechnung
- Energieausweis bzw. bauphysikalischer Nachweis inkl. Schallschutz (beim Einfamilienhaus)
- Belichtungsflächennachweis
- Sickerschacht- bzw. Retentionsschachtdimensionierung
- Bauansuchen
- Einmalige Gratisänderung
- CAD Reinzeichnung und Übermittlung des Entwurfs als pdf oder dwg-Datei
- 3D-Visualisierung außen inklusive Video
- Erledigung der mit der Einreichung verbundenen Behördenwege

Energieausweis – Unkompliziert schnell
Der Energieausweis liefert umfassende Informationen zur Gesamtenergieeffizienz eines Gebäudes. Er enthält beispielsweise Angaben zum Heizwärmebedarf, Warmwasserwärmebedarf und den CO₂-Emissionen. Aus diesen Werten wird die Gesamtenergieeffizienzklasse des Gebäudes berechnet. Die Erstellung des Energieausweises erfolgt auf Basis der jeweils geltenden technischen Bauvorschriften, die auf Ebene der Bundesländer geregelt sind.
Energieausweise werden sowohl für Wohngebäude als auch für Nicht-Wohngebäude ausgestellt.